免费下载
大小:59.45M
下载:1次
浩辰cad看图王手机版 V5.8.0
- 支 持:安卓
- 分 类:安卓软件
- 大 小:59.45M
- 版本号:v5.8.0
- 发 布:2026-01-04 22:51:58
手机扫码免费下载
#浩辰cad看图王手机版 V5.8.0简介
浩辰cad看图王手机版是一款专为工程设计领域打造的移动端软件,通过即时通讯和图纸管理,实现多人共享图纸、即时交流沟通、操作实时同步的功能。用户可以在软件中进行多人共享图纸,无需频繁切换工具,提高工作效率,简化工作流程。支持实时交流沟通,让团队成员之间可以随时交换意见和想法,提高沟通效率,减少误解。
CAD看图王使用教程
1、打开图纸后,点击CAD看图王最新软件右上方三个点按钮,点击设置,可以看到命令面板、放大镜等功能设置界面。

2、当开启命令面板,执行绘图操作时,如直线、圆、矩形等功能,会弹出命令面板,可以在命令面板中输入相应的参数,如角度、长度、坐标等。

3、取消这个选项后,将不会弹出命令面板,只有点击对应的数字时才会弹出。这个适用于根据捕捉点绘制的时候,不需要手动控制参数的情况。

4、开启模拟鼠标后,单指长按屏幕捕捉的时候,显示的捕捉点是在手指的上方,而不是手指按压的地方。这样可以防止手指遮挡住捕捉点,方便查看。

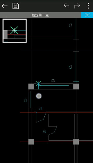
5、当测量或者绘图时,单指长按屏幕,在软件左上方会显示一个方框,里面是对手指点击处图纸的放大显示,这个设置就是控制放大镜的位置和大小。

浩辰cad看图王手机版软件特色
1. 可以在软件内进行即时交流,分享想法和见解,提高团队协作效率。
2. 支持多人共享图纸,实现图纸操作实时同步,避免因版本不同而导致的问题。
3. 无需在看图工具和通讯工具之间频繁切换,一站式满足工程设计需求,简化操作流程。
浩辰cad看图王手机版软件亮点
1. 实现多人共享图纸,让团队成员可以即时查看和编辑,轻松进行软件使用。
2. 图纸操作实时同步,避免因版本不同而导致的误操作和错误。
3. 支持即时通讯,让团队成员可以随时交流沟通,提高沟通效率,减少沟通误解。
浩辰cad看图王手机版软件简评
浩辰cad看图王手机版是一款专为工程设计领域打造的移动端软件,通过即时通讯和图纸管理,实现多人共享图纸、即时交流沟通、操作实时同步的功能。其支持多人共享图纸、实时同步操作和高效沟通的特点,使其成为工程设计领域的理想利器,极大地提高了团队协作效率和工作效率。